RRHX明桿彈性座封閘閥
RRHX明桿彈性座封閘閥除具有彈性座封閘閥的優點之外.并可以較直觀顯閥門開度.啟閉迅速可靠,故常應用于消防及工業系統。一般安裝于距地面較高位置。
概述

RRHX明桿彈性座封閘閥除具有彈性座封閘閥的優點之外.并可以較直觀顯閥門開度.啟閉迅速可靠,故常應用于消防及工業系統。一般安裝于距地面較高位置。
適用范圍
當前水力控制閥被廣泛用于石油化工、化工、煤氣、天然氣、液化石油氣、暖通行業以及一般工業中。
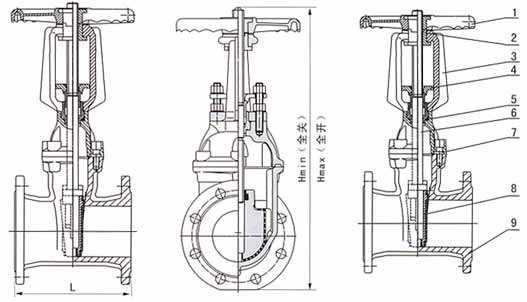
結構示意圖

主要零部件材料
NO. | 零件名稱 | 材質 |
1 | 手輪 | 可鍛鑄鐵 |
2 | 閥桿螺母 | 銅合金 |
3 | 支架 | 碳鑄鐵、球墨鑄鐵、鑄鋼 |
4 | 壓蓋 | 球墨鑄鐵、鑄鋼 |
5 | 密封圈 | 丁腈橡膠、三元乙丙 |
6 | 閥桿 | 不銹鋼 |
7 | 中口墊 | 丁腈橡膠、三元乙丙 |
8 | 閘閥 | 球墨鑄鐵+三元乙丙或丁腈橡膠 |
9 | 閥體 | 灰鑄鐵、球墨鑄鐵、鑄鋼 |
主要技術參數
公稱壓力:1.0~2.5MPa
公稱通徑:50~400mm
工作溫度:0~120℃
適用介質:水、油、氣等
法蘭標準:GB/T17241.6GB9113
試驗標準:GB13927API598
主要連接外型尺寸
DN | 50 | 65 | 80 | 100 | 125 | 150 | 200 | 250 | 300 | 350 | 400 | 450 | 500 | 600 |
L | 178 | 190 | 203 | 229 | 254 | 267 | 292 | 330 | 356 | 381 | 406 | 432 | 457 | 508 |
Hmin(全關) | 313 | 332 | 372 | 424 | 497 | 562 | 680 | 837 | 948 | 1010 | 1220 | 1280 | 1480 | 1665 |
Hmax(全開) | 355 | 375 | 415 | 476 | 540 | 600 | 720 | 875 | 990 | 1050 | 1245 | 1310 | 1560 | 1750 |
服務承諾
(1) 嚴格按照合同要求,提供符合設計標準,質量合格的產品。
(2) 嚴格檢查和控制原材料、原器件、配套件的進廠質量。
(3) 保證所供設備加工工藝完善、檢測手段完備。產品絕不帶缺陷出廠。
(4) 對涉及分包商的供貨、質量、設備性能、技術接口、服務等方面問題全部責任。按合同規定的關鍵部件必須符合有關資質的要求,并經需方認可。
(5) 按合同規定向監造單位提供有關部門標準和圖紙,并為監造提供方便并對監造設備的停工待檢部位提前7天通知需方及監造代表,需方所派監造是督促我方按標準生產合格產品,但并不減我方的一切質量責任。
(6) 對設備制造過程中出現的質量缺陷及時向需方和監造代表通報、不隱瞞。若設備缺陷超過合同規定的標準,供方無條件更換。在安裝和試運行過程中,設備出現質量問題,先處理問題,再分清責任,一切以滿足工程進度需要為準則。
(7) 為所供的設備在制造、運輸、裝卸過程中投保,-旦發生意外,我方將按需要對所供設備盡快進行免費更換、修理,直到需方滿意為止。
(8) 在開箱過程中如發現缺件及其他原因引起的零部件丟失,我方負責盡快免費補齊所缺零部件。在設備的安裝、調試過程中以及今后在設備運行中發現的質量問題,如屬我方原因,我方承擔責任。
(9) 按時向需方提供按合同規定的全部技術資料和圖紙。有義務在必要時邀請需方參與我方的技術設計審核。
(10) 按需方要求的時間到現場進行技術服務,指導需方按我方的技術資料和圖紙的要求進行安裝、試運行及試生產。
(11) 對于需方先購的與合同設備有關的配套設備,我方主動提供滿足設備接口要求的技術條件和資料。
(12) 嚴格執行供需雙方就有關問題召開會議的紀要或協議。
(13) 按合同規定免費為需方舉辦有關設備安裝、調試、使用、維護技術的業務培訓班。
(14) 加強售前、售中、售后服務,把"24小時服務"、"超前服務"、"全過程服務"、 "終身服務"貫徹在產品制造、安裝、調試、大修的全過程。
(15) 接到需方反映的質量問題信息后,在24小時之內作出答復或派出服務人員,盡快到達現場,做到用戶對質量不滿意,服務不停止。
(16) 免費為產品提供終身維護,凡我廠用戶,均建立了詳盡的用戶檔案,我廠售后服務。人員實行定期回訪,巡視制度,指導用戶的日常維護,及時指出并解決可能出現的故障。
(17) 隨時滿足需方對備品備件的要求,終身為用戶提供質優價廉的零配件。
|
||||||||||||||||||||||||
![]() |
||||||||||||||||||||||||
| ||||||||||||||||||||||||










